主案設計師:林賢
案例地址:日照 · 東岸世家
案例面積:167㎡
案例風格:現代極簡
設計亮點:極簡與生活品質的集合體

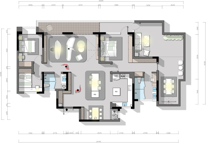
平面布置圖
從城市高密度焦慮里剝離出來,房子就是生活的珠寶盒,盛放著光陰無聲細細流,更裝載著自己想要的日子。
設計圖
通過不斷捕捉空間變化,用藝術的語言描繪其形態,以“美學”為藝術創作精神,追求和諧唯美設計感,不造作、不浮夸、不喧嚷,以此表達空間自身的時髦態度。
藝術作品裝飾空間,使藝術與生活零距離,同時,藝術品還是重要的社交載體,是主人公格物精神的延伸。
設計師通過色彩、材質奠定空間的低調輕奢風格。結合不可或缺的藝術品展示,營造出主人高雅的生活環境。
尋求感官與心境上的多重調和,因此設計師用高級燈光營造溫馨不乏浪漫的空間,抬高鞋柜高度,下面鏤空滿足日常的儲物需求。
書房地面運用木材質感去做設計,正方形掛畫,顯得空間簡單大方且沉穩,整個空間形成舒適、安逸、穩重的氛圍。
一千個人眼中有一千個哈姆雷特,多功能空間便是其中的多元化場景之一,這是生活態度的另一種表達,詮釋了主人鮮活的生活態度和審美品位。
美食是一種生活方式,傳達出對美食器物的訴求。合理安排動線,大大節約了使用空間,再以結合餐廳更透出一股家人共進餐的溫馨。
當結束一天的忙碌和喧囂,臥室帶來沉靜、自由、放松、安穩的氣息。簡潔溫馨的室內空間布置,隱藏燈帶點綴高級背景墻,營造自在的氛圍。
衛生間在我們的家居生活中占據重要地位,是我們每日需要接觸的地方,一個高品質的衛生間設計的背后,一定藏著一顆精致的靈魂。