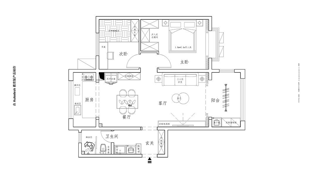
青安·海悅居86㎡二室二廳客廳邊戶戶型布置圖
青安·海悅居86㎡二室二廳客廳電視現代簡約風格裝修案例效果圖
青安·海悅居86㎡二室二廳客廳沙發現代簡約風格裝修案例效果圖
青安·海悅居86㎡二室二廳客廳電視現代簡約風格裝修案例效果圖

青安·海悅居86㎡二室二廳客廳陽臺現代簡約風格裝修案例效果圖

青安·海悅居86㎡二室二廳客餐廳現代簡約風格裝修案例效果圖

青安·海悅居86㎡二室二廳廚房現代簡約風格裝修案例效果圖