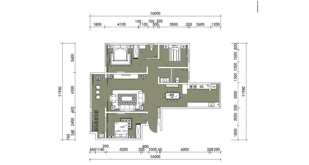
市直三區150㎡三室兩廳戶型平面布局圖
市直三區150㎡三室兩廳客廳新中式風格裝修案例效果圖
市直三區150㎡三室兩廳走廊新中式風格裝修案例效果圖
市直三區150㎡三室兩廳餐廳新中式風格裝修案例效果圖
客餐廳裝飾多采用簡潔硬朗的直線條。直線裝飾在空間中的使用,不僅反映出現代人追求簡單生活的居住要求,更迎合了中式家具追求內斂、質樸的設計風格,使“新中式”更加實用、更富現代感。次臥中簡單舒適,與眾不同的背景墻和吊頂,展現出與眾不同的一面。
市直三區150㎡三室兩廳主臥新中式風格裝修案例效果圖
市直三區150㎡三室兩廳次臥新中式風格裝修案例效果圖
市直三區150㎡三室兩廳臥室新中式風格裝修案例效果圖
在臥室設計上,要追求的是功能與形式的完美統一,優雅獨特,簡潔明快的設計風格。在臥室設計的審美上,要追求時尚而不浮躁,莊重典雅而不乏輕松浪漫的感覺。因此,在臥室的設計上,會更多地運用豐富的表現手法,使臥室看似簡單,實則韻味無窮
市直三區150㎡三室兩廳書房新中式風格裝修案例效果圖

市直三區150㎡三室兩廳衛生間新中式風格裝修案例效果圖
想要把衛生間裝修得實用而又美觀,首要的問題就是要對這個空間做一個整體的設計。衛生間具備清洗、浴室、廁所三種功能,因此我們要先設計好收納柜和衛浴用品的位置。將這個受限的空間做一個恰當的規劃,只有作好了規劃才能做更進一步的細節處理。